The George Washington University Thurston Hall Renovation
With the intent to draw students out of their rooms and into opportunities to live, learn, and develop as a community, the renovation of Thurston Hall integrates academic and social experiences around central community spaces with views, clear orientation, and destinations for collaboration.
Client: The George Washington University
Location: Washington, DC
Scope: Renovation
Completion: 2022
Size: 209,361 SF
Performance: LEED Platinum | EUI 62 kBTU/sf/year (measured) | 44% reduction compared to a LEED ASHRAE 90.1-2010 Appendix G baseline
As the largest first-year residence hall at The George Washington University, Mabel Nelson Thurston Hall is critical to creating a sense of identity and community for GW’s Foggy Bottom campus. Inspired by GW’s student-centered mission to “Spark, Energize, Develop, and Belong,” the design connects students to the urban setting, enhances social and academic experiences, and prioritizes student success and well-being.
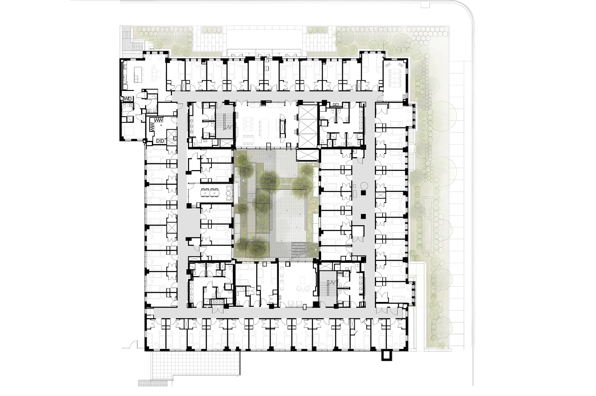
The ambitious renovation removes the south-central portion of 5 stories of Thurston Hall, enhancing the building’s courtyard and access to natural light. This bold and transformative move stems from the client’s goal to de-densify the building and provide more flexible, safe, and healthy places for learning and gathering. “Found” spaces, like the former central lightwell, are transformed into flexible, programmable spaces such as a light-filled courtyard that promotes the development of a vibrant, engaged, and inclusive community.
Residents and visitors alike are greeted with an open and inviting entry along F Street that flows into a terraced courtyard space. Organizing the building’s public spaces as “lanterns” around the courtyard brings natural light and views to all the primary gathering spaces of the building. Outdoor terraces serve as casual hang-out spots but are also a fitting setting for receptions and public events. Double-height residential lounges facing the courtyard amplify light penetration and contribute to a higher sense of community and security through visual connection. The design’s central courtyard brings the rhythms of the District into the heart of the building and provides opportunities for students to engage with each other and DC’s urban context.
Thurston Hall’s renovation focuses on providing a communal, healthy, and positive first year experience by providing opportunities for multiple scales of connection through daylighting, view, and acoustics. Providing a setting that facilities student gathering, lifelong friendships, and a sense of belonging will equip students for their future at GW and beyond.
View from Northeast Corner
“VMDO was unanimously selected to be our partner for the project after demonstrating a design solution that presented: a deep understanding of what makes a dynamic, student-focused residential community; a positive alignment with our guiding principles and mission to “Spark, Energize, Develop, and Belong”; a protective sensitivity to the historic building and urban context; and an overall sense of creativity and purpose in their approach to making every component of the project invite robust student interaction.”
Courtyard towards South, from Above
“A student’s living environment impacts the success that they will have at college. Thurston Residence Hall provided the opportunity to design an environment that prioritized all of the factors that contribute to student success. VMDO understood this opportunity and then delivered.”

